A 2,300 Sqft Residential Project in Toronto, ON
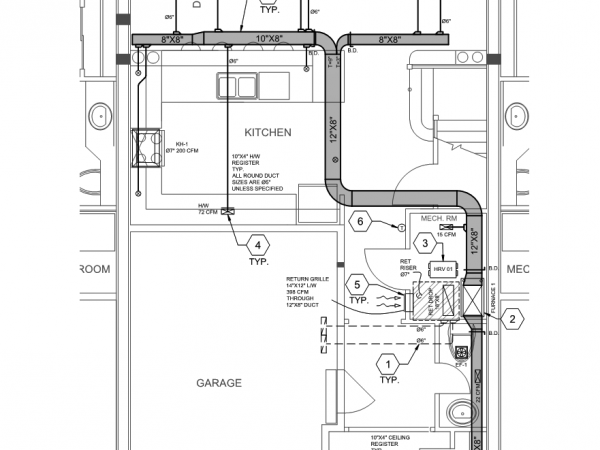
HVAC system with two furnace/AC
We provide various types of designs for residential HVAC systems including but not limited to forced-air systems (furnace/AC, high and low-velocity air handlers, heat pumps, etc), Hydronic systems (In-floor heating and/or rads with boiler), etc. We offer residential HVAC, plumbing, and electrical design for different projects such as new construction, addition, and interior alternation projects as well as multi-dwelling units, apartments, etc.
For townhouse & subdivision projects, our services include design and contract administration for all mechanical (HVAC, Plumbing, etc ) and electrical systems. For any inquiries, please contact us.
HVAC System WIth multi furnaces/ ACs, heated floor garage & snow melting for front porch and driveway
HVAC system with four furnace/AC systems and garage exhaust system with make-up air fan & heater
In-floor heating as for the primary heating system & ductless heat pump for Cooling and supplementary heating
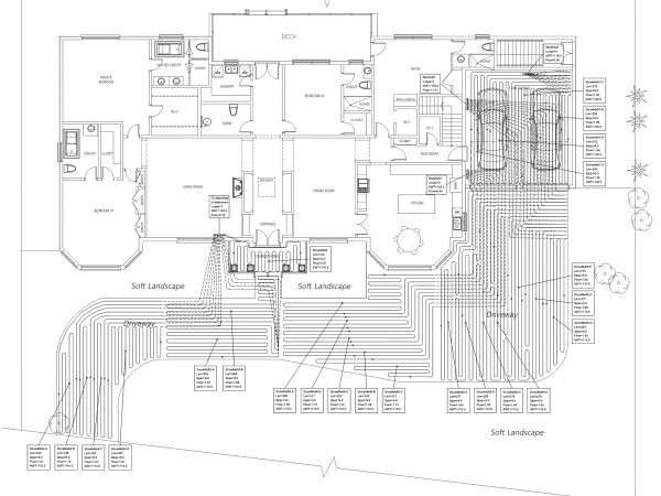
Multi HVAC systems with modulating furnace/ ACs for primary heating, In-floor hydronic for basement & indoor pool complete with de-humidification and snow melting for the outdoor pool, sidewalks & driveway
HVAC design with ducted heat Pump, complete plumbing for domestic water & sanitary & electrical basic design
HVAC design with four furnace/AC , Pool HVAC design with air handler & dehumidifier
Multi furnace/ACs for primary heating & cooling, in-floor hydronic for supplementary heating & snow melting for front porch, sidewalks and driveway
HVAC design system for 3 story single dwelling house with furnace/AC system & garage exhaust system with make-up air/exhaust fan and co sensor system
Multi ducted heat pump for primary heating & cooling
In-floor heating as for the primary heating system & ductless heat pump for Cooling and supplementary heating