Medical Production Facility in Vaughan, ON
Stouffville, ON
Mechanical Design (HVAC, plumbing & fire protection)
Design with RTU system
Townhouse Project 30k sqft
Thorold Stone Rd., Niagara Falls, ON
HVAC & Plumbing Design
Design with furnace & AC
Dentistry Clinic in Toronto, ON
Keels St., Toronto, ON
Mechanical & Electrical Design
Design with VRV system
Dentistry Clinic in Toronto, ON
Avenue Rd., Toronto, ON
HVAC, Plumbing & Medical Gas Design
Design with AHU, furnace & AC
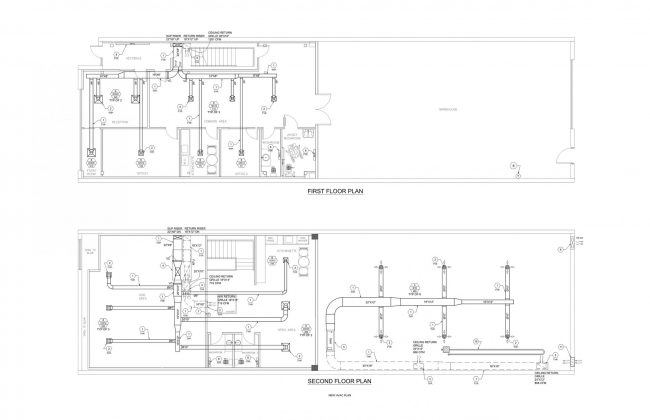
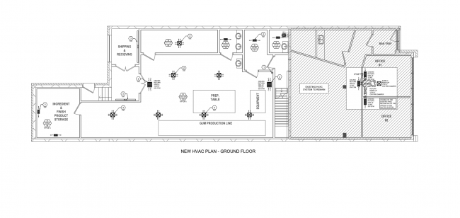
Manufacturing & Production Building in Stouffville, ON
Stouffville, ON
Mechanical Design (HVAC, plumbing & fire protection)
Design with RTU system
Banquet Hall Building in Mississauga, ON
Dundas St. , Mississauga, ON
Mechanical & Life Safety Design
Design with RTU system
Office Building in Markham, ON
Markham, ON
HVAC Upgrade Design For 80 Ton RTU
Design with roof unit
Industrial Condo
Niagara Falls, ON
Mechanical & Electrical Basic
Design for site plan approval
Office Building in Toronto, ON
Yonge St., Toronto, ON
HVAC, Plumbing & Life Safety
Design with VRV system






































